Description
- Terraced Bungalow
- Two Bedrooms
- Sea Views
- Popular Quiet Residential Location
- Front & Rear Gardens
- Garage
- Unrestricted On-Street Parking
- Tenure: Freehold
- Council Tax Band: C
This well presented terraced bungalow is situated in a peaceful and popular residential location on the eastern side of Lyme Regis. The property benefits from lovely views across the town and to the sea. It is within walking distance of the town centre.
A paved path leads through the front garden to the front door. The central hallway has loft access and three useful storage cupboards, one of which houses the Baxi gas Combi boiler. A good size living room features a fireplace with tiled surround and hearth and a large picture window overlooking the front garden with views across the town.
The house has two double sized bedrooms. A light and airy master room benefits from views over the rear garden to the sea, with glimpses of Lyme Regis’ Cobb Harbour.
A modern shower room leads off the main hallway and features a large glass walk in shower cubicle with electric shower and bushboard surrounds, WC, wash hand basin and heated towel rail. The bathroom is mainly tiled with vinyl flooring.
A galley-style fitted kitchen comprises base and wall cupboards The walls are partially tiled. There is space and plumbing for a washing machine, dishwasher and fridge freezer. There is a freestanding gas cooker with extractor fan above. The room has vinyl flooring. A window and door lead into the conservatory and onwards to sliding patio doors to the rear garden. This bright and airy room has picture windows and lovely views over the town to the sea.
Outside
The easy to maintain front garden is bordered by hedges and is gravelled. The rear garden is also bordered by hedges and timber fencing and is mainly laid to lawn with planted borders housing a variety of shrubs and plants. A path to a rear access gate leads to a very useful garage with up and over door.
Vehicle access to the garage is via a shared private driveway.
There is plenty of unrestricted off-road parking available outside the front of the property.
Mains services are all connected, along with full fibre broadband available outside the property. Chain free property.
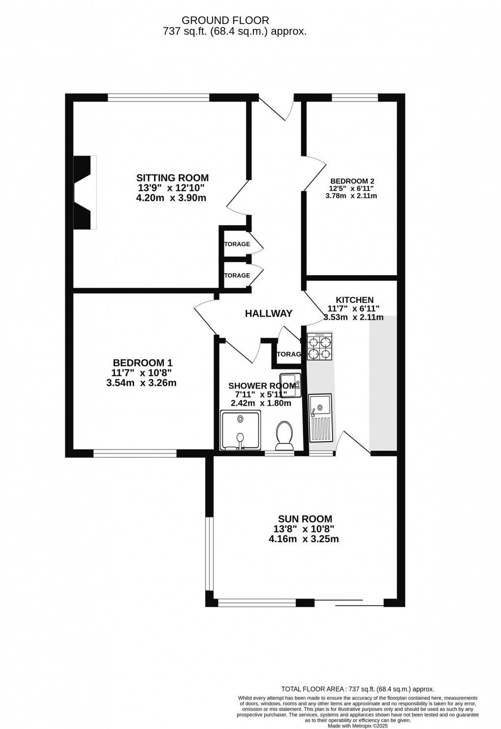
Floorplan

To discuss this property call us:
Market your property
with Fortnam Smith & Banwell
Book a market appraisal for your property today. Our virtual options are still available if you prefer.